Hi,优顺厂房网欢迎您 2026年05月01日 星期五
客服热线
0571-83712873 
广告投放:13346159775
投诉热线:15088773908

 
热门推荐
当前位置:首页厂房租售
厂房租售

独栋厂房!有分层!GMP标准!

编号:40333   2024-10-16 11:42:12  浏览次数:95次
  信息类型:出租出售 面积分类:800-1500㎡
  所属行业:医药保健- 所属区域:江干
  建筑分类:框架结构 建筑层数:多层(二层以上)
  租金: 总面积:4500(㎡)
  厂房占地面积:1469(㎡) 车间面积:(㎡)
  办公面积:(㎡) 空地面积:(㎡)
  有无电梯: 是否独院:
  配电容量: 建筑结构:钢架结构
  柱网跨度: 楼层承重量:1吨
  所在楼层:在层 建筑层高:共层
  可否分租: 起租面积:
  付款方式:面议 转让费:
  附近地标: 装修:毛坯
  路段名称: 详细地址:浙江省杭州市钱塘区杭州医药港和达药谷十期
联系人:张经理     电话:13346159775    打电话请说是在优顺厂房网看到的,谢谢!
详细说明
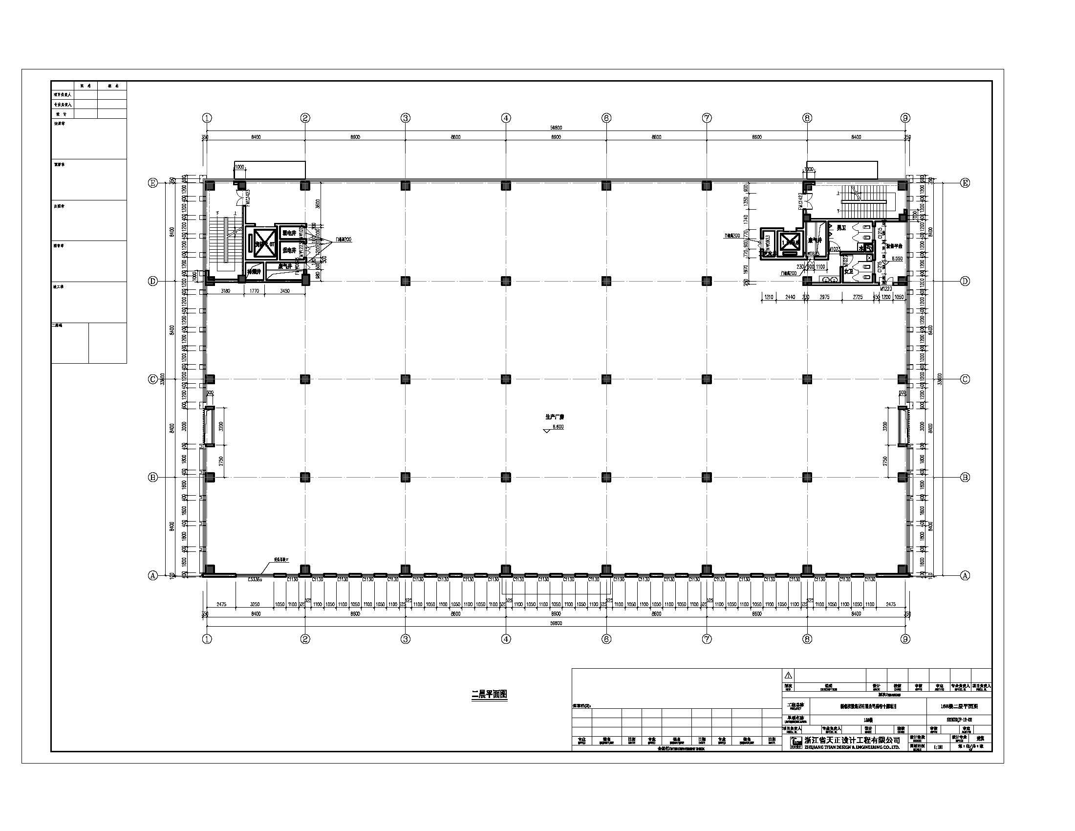
【硬核产品】
★项目总用地面积:约88.44亩
★项目总建筑面积:约16万㎡(地下室3万㎡)
★面积:产品以5~6层独栋产品为主,单层面积从1045~2162㎡不等,可独栋也可双拼,双拼后最大总面积可达19500㎡,可满足企业办公、研发、小型生产等多类需求。
★层高:首层层高5.7~6.6m,二层层高4.5~5.1m,二层以上层高4.2~4.5m
★荷载:首层不低于1000KG/㎡,二层500~600KG/㎡,三层至顶层350~500KG/㎡
图片展示
网站首页 | 会员服务 | 业务合作 | 关于本网 | 通知公告 | 企业文化 | 联系我们

杭州专业的厂房租售信息发布平台
Copyright © 2020 优顺厂房网 www.zjyscfw.com All Rights Reserved
浙ICP备20003617号-1