Hi,优顺厂房网欢迎您 2026年05月01日 星期五
客服热线
0571-83712873 
广告投放:13346159775
投诉热线:15088773908

 
热门推荐
当前位置:首页厂房租售
厂房租售

标准厂房!政策优良!配套齐全

编号:40324   2024-09-30 09:44:16  浏览次数:113次
  信息类型:出售 面积分类:1500-3000㎡
  所属行业:医药保健- 所属区域:江干
  建筑分类:框架结构 建筑层数:多层(二层以上)
  租金: 总面积:2950(㎡)
  厂房占地面积:(㎡) 车间面积:(㎡)
  办公面积:(㎡) 空地面积:(㎡)
  有无电梯: 是否独院:
  配电容量:125 建筑结构:
  柱网跨度: 楼层承重量:
  所在楼层:在层 建筑层高:共6层
  可否分租: 起租面积:
  付款方式:面议 转让费:
  附近地标: 装修:毛坯
  路段名称: 详细地址:浙江省杭州市钱塘区杭州医药港和达药谷十期
联系人:张经理     电话:13346159775    打电话请说是在优顺厂房网看到的,谢谢!
详细说明
和达药谷又名生物医药加速器,是杭州医药港小镇生物医药产业主要的园区类承载平台,目前已规划至十期。十期项目地处杭州医药港南侧门户区位,东至幸福河,隔河为幸福北路,南至松乔街(纬一路),西至规划道路,北至金乔街(元成南路),四面环路,区位优异,配套齐全。
【项目亮点】
杭州市钱塘区医药港门户区位,产城融合
生物医药“六链融合”产业生态圈
zf主导的生物医药产业发展专业载体
全生命周期“管家式”贴心服务体系
成熟配套资源,项目1公里范围覆盖三大商业核心圈
【硬核产品】
★项目总用地面积:约88.44亩
★项目总建筑面积:约16万㎡(地下室3万㎡)
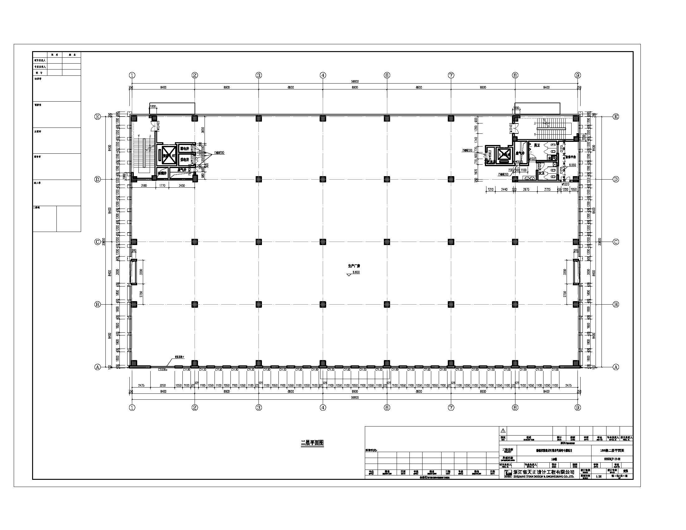
★面积:产品以5~6层独栋产品为主,单层面积从1045~2162㎡不等,可独栋也可双拼,双拼后最大总面积可达19500㎡,可满足企业办公、研发、小型生产等多类需求。
★层高:首层层高5.7~6.6m,二层层高4.5~5.1m,二层以上层高4.2~4.5m
★荷载:首层不低于1000KG/㎡,二层500~600KG/㎡,三层至顶层350~500KG/㎡
图片展示
网站首页 | 会员服务 | 业务合作 | 关于本网 | 通知公告 | 企业文化 | 联系我们

杭州专业的厂房租售信息发布平台
Copyright © 2020 优顺厂房网 www.zjyscfw.com All Rights Reserved
浙ICP备20003617号-1